Galeria
VEJA AQUI MAIS INFORMAÇÕES RELEVANTES SOBRE PROJETOS DE OBRA CONSTRUÇÃO CIVIL
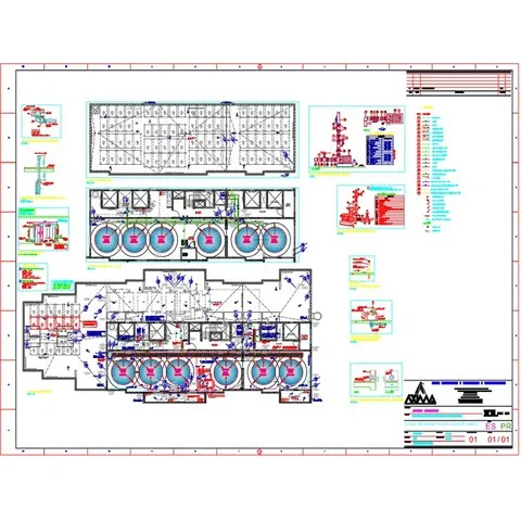
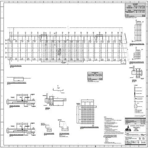
Tratando-se de projetos de obra construção civil, dizemos que serve para executar projetos para todos os segmentos ou elaborar e executar projetos de qualidade. Passando rapidamente, é feito por uma equipe qualificada e softwares de última geração.
Pensando mais a longo prazo, costumeiramente também denominado projeto completo de engenharia civil, pode ser reconhecido por seus diferenciais que contemplam, através do projeto conseguimos garantir a melhor execução da obra e oferecer soluções adequadas para o cliente através de um planejamento eficiente, tais fatores garantem o aumento da qualidade com retenção dos custos a médio e longo prazo e, em alguns casos específicos, logo nos primeiros meses.
VEJA ABAIXO DIFERENCIAIS DE PROJETOS DE OBRA CONSTRUÇÃO CIVIL
projetos de obra construção civil com alta tecnologia você encontra na ÁXIMA. Veja abaixo nossos diferenciais:
- qualidade do projeto
- pontualidade da entrega
- softwares com alta tecnologia
- equipe técnica treinada
- experiência de mercado
MAIS INFORMAÇÕES INTERESSANTES SOBRE A ÁXIMA
Saiba que na ÁXIMA você tem o que há de melhor no ramo de construção civil. É sempre a opção mais confiável, disponibilizando itens como projetos de obra construção civil com pontualidade da entrega. Mas não para por aí, aqui você ainda conta com produtos à pronta entrega e pagamento parcelado por boleto ou cartão.
Isso se deve ao fato da empresa ser líder no mercado e altamente qualificada, conquistas adquiridas por que investiu em uma estrutura que hoje conta com máquinas de última geração e sistema de entrega próprio, ainda mais, unido a um time com profissionais certificados e engenheiros formados, comprova sua essência de trazer o melhor para seus clientes.
